Die DIN 7396 beschreibt das Prüfverfahren zur "akustischen Kennzeichnung von Entkopplungselementen für Massivtreppen". Sie ist in Europa die erste Norm, die ein Messverfahren für Trittschalldämmelemente für Treppen definiert und eine Vergleichbarkeit von Produkten ermöglicht. Die Prüfungen erfolgen mit bauüblichen Auflasten und Treppengeometrien. Zudem werden ganze Treppenläufe und Podeste geprüft, sodass die Schallübertragung über die tragenden Elemente aber auch über die Fugen berücksichtigt wird. Damit wird das System "Treppe" geprüft und ist mit der Einbausituation im Gebäude vergleichbar. In dem System wird auch die Übertragung über die Fugenplatten berücksichtigt. Wird diese bei der Prüfung vergessen, kann das im Gebäude eine hörbare Verschlechterung bewirken.
Im Verfahren nach DIN 7396 werden pro Trittschalldämmelement drei Kennwerte bestimmt:
Die Trittschalldämmung wird mit verschiedenen Lastfällen bestimmt, da das schalldämmende Elastomerlager unter Last seine akustische Eigenschaft ändert.
Der Prüfaufbau ist in der DIN 7396 beschrieben. Als Referenzwand zum Empfangsraum dient eine einschalige Wand mit einer flächenbezogenen Masse m' = (450 ± 10) kg/m² inkl. Putz, sie entspricht der Treppenhauswand im Gebäude. Wird die Referenzwand in Stahlbeton ausgeführt, muss die Wand eine Rohdichte ≥ 2000 kg/m³ aufweisen. Für eine Ausführung mit homogenen Mauersteinen müssen die Steine eine Rohdichteklasse ≥ 1,8 haben. Damit wird sichergestellt, dass die geprüften Werte auf der sicheren Seite liegen und auf die Baustelle übertragen werden können.
Das Referenztreppenpodest in Stahlbeton ist auf einer Hilfswand zu lagern, welche statisch ausreichend stabil sein muss und deren Höhe eine horizontale Ausrichtung des Podestes ermöglicht. Der Referenztreppenlauf ist ebenfalls in Stahlbeton herzustellen. Die Anschlussausführung (z. B. Auflagerkonsolen) ist durch die produktspezifischen Anforderungen zu bemessen und daher nicht Teil der DIN 7396.
 
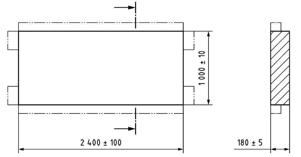
                                    Abmessungen des Referenztreppenlaufes nach DIN 7396 (Quelle: DIN 7396:2016-06)
Die Abmessungen im Gebäude können von den Abmessungen im Prüfstand abweichen. Des Weiteren entstehen im Gebäude zusätzliche Lasten, wie z. B. durch Belag. Dies kann zu unterschiedlichen Lagerpressungen führen, was die akustischen Eigenschaften der Trittschalldämmelemente maßgeblich beeinflussen kann. Aus diesem Grund werden bei der Prüfung nach DIN 7396 bauübliche Zusatzlasten mitgeprüft und durch sogenannte Laststufen angegeben. Die Zusatzlasten werden durch eine Hydraulikpresse erzeugt und mit einem Kraftaufnehmer die Zusatzlast gemessen.
Die Podest- oder Lauf-Trittschallpegeldifferenz ΔL*Podest oder ΔL*Lauf beschreibt die Trittschalldämmwirkung des Elements. Sie ist als bewerteter Einzahlwert eine Produktkenngröße und dient dem akustischen Vergleich von Produkten.
Zur Ermittlung der Kenngröße wird ein Prüfaufbau mit starrem Anschluss mit dem eines akustisch gelagerten Anschlusses verglichen.
Messung des Norm-Podest-Trittschallpegels nach DIN 7396 – gedämmter Anschluss
Zur Bestimmung der Podest-Trittschallpegeldifferenz ΔL*Podest werden die beiden Norm-Trittschallpegel Ln0,Podest und Ln,Podest terzweise voneinander subtrahiert. Gleiches gilt auch für die Lauf-Trittschallpegeldifferenz ΔL*Lauf.
ΔL*Podest = Ln0,Podest - Ln,Podest
ΔL*Podest : Podest-Trittschallpegeldifferenz, in Dezibel
Ln0,Podest : Norm-Podest-Trittschallpegel des Referenztreppenpodestes bei starrem Einbau, in Dezibel
Ln,Podest : Norm-Podest-Trittschallpegel des Referenztreppenpodestes mit der zu prüfenden Entkopplung, in Dezibel
ΔL*Lauf : Podest-Trittschallpegeldifferenz, in Dezibel
Ln0,Lauf : Norm-Lauf-Trittschallpegel des Referenztreppenlaufs bei starrem Einbau, in Dezibel
Ln,Lauf : Norm-Lauf-Trittschallpegel des Referenztreppenlaufs mit der zu prüfenden Entkopplung, in Dezibel
Die resultierenden Trittschallpegeldifferenzen werden daraufhin nach DIN EN 717-2 „Akustik – Bewertung der Schalldämmung in Gebäuden und von Bauteilen – Teil 2: Trittschalldämmung“ bestimmt. Diese Produktkenngrößen sind für das Nachweisverfahren nicht geeignet.
Die Trittschallpegelminderung ist die Schalldämmung, die durch die Bauteile Podest oder Lauf inklusive Trittschalldämmelement unter Berücksichtigung der Stoßstelle Lauf-Podest oder Podest-Wand erreicht wird. Die Trittschallpegelminderung dient als Eingangsgröße für die Nachweisführung nach DIN EN ISO 12354-2.
Die Podest-Trittschallpegelminderung ΔLPodest wird nach DIN 7396 bestimmt, indem der Norm-Wand-Trittschallpegel Ln0,Wand der Referenzwand und der Norm-Podest-Trittschallpegel des entkoppelten Referenztreppenpodestes Ln,Podest geprüft wird. Anschließend werden die beiden Größen frequenzabhängig voneinander subtrahiert.
ΔLPodest : Podest-Trittschallpegelminderung, in Dezibel
Ln0,Wand : Norm-Wand-Trittschallpegel der Referenzwand, in Dezibel
Ln,Podest : Norm-Podest-Trittschallpegel des entkoppelten Referenztreppenpodestes, in Dezibel
Messung des Norm-Lauf-Trittschallpegels nach DIN 7396 – gedämmter Anschluss
Die Lauf-Trittschallpegelminderung ΔLLauf wird nach DIN 7396 bestimmt, indem einmal der Norm-Podest-Trittschallpegel des starr angeschlossenen Referenzpodestes Ln0,Podest und danach der Norm-Lauf-Trittschallpegel des entkoppelt gelagerten Referenztreppenlaufs Ln,Lauf geprüft wird. Die Werte werden ebenfalls terzweise voneinander subtrahiert.
ΔLLauf : Lauf-Trittschallpegelminderung, in Dezibel
Ln0,Podest : Norm-Podest-Trittschallpegel des starr in der Referenzwand einbetonierten Referenztreppenpodestes, in Dezibel
Ln,Lauf : Norm-Lauf-Trittschallpegel des entkoppelten Referenztreppenpodestes, in Dezibel
Die Podest-Trittschallpegelminderung und die Lauf-Trittschallpegelminderung nach DIN 7396 werden für die detaillierte Nachweisführung nach DIN EN ISO 12354-2 verwendet.
Für das vereinfachte Verfahren nach DIN EN ISO 12354-2 wird die bewertete Podest-Trittschallminderung ΔLw,Podest und die bewertete Lauf-Trittschallpegelminderung ΔLw,Lauf benötigt, welche ebenfalls nach DIN EN ISO 717-2 bestimmt werden. Diese Kenngrößen dienen als Eingangsgrößen für die Nachweisführung für das vereinfachte Verfahren nach DIN EN ISO 12354-2.
Für die pauschale Nachweisführung nach DIN 4109 Teil 2 wird der bewertete Norm-Trittschallpegel Ln,w nach DIN 7396 verwendet. Der bewertete Norm-Trittschallpegel Ln,w wird im Empfangsraum des Prüfstandes gemessen. Dieser ergibt sich aus einer bauüblichen und repräsentativen Treppengeometrie nach DIN 7396 und unter bauüblichen Lasten.
Messung des Norm-Lauf-Trittschallpegels nach DIN 7396 – gedämmter Anschluss
Des Weiteren wird das System „Treppe" geprüft, sodass die Übertragung über die Fugen ebenfalls berücksichtigt wird. Daher können die gemessenen Werte nach DIN 7396 auf den Neubau übertragen werden.
Zur einfachen Vergleichbarkeit von Produkten gibt es eine weitere Produktkenngröße, bei der die Einzahlwerte aus den Messungen nach DIN 7396 voneinander subtrahiert werden können. Dies ermöglicht eine Differenzbildung mit Einzahlwerten und ohne Anwendung des Bezugsdeckenverfahrens.
ΔL*n,w: Trittschallpegeldifferenz des Trittschalldämmelements (Produktkenngröße)
Ln0,w,Podest: bewerteter Norm-Trittschallpegel des Referenztreppenpodestes bei starrem Einbau, in Dezibel
Ln,w,Podest: bewerteter Norm-Trittschallpegel des Referenztreppenpodestes mit der zu prüfenden Entkopplung, in Dezibel
Ln0,w,Lauf: bewerteter Norm-Trittschallpegel des Referenztreppenlaufs bei starrem Einbau, in Dezibel
Ln,w,Lauf: bewerteter Norm-Trittschallpegel des Referenztreppenlaufs mit der zu prüfenden Entkopplung, in Dezibel
Die bewerteten Norm-Trittschallpegel werden nach DIN EN ISO 717-2:2013-06 aus den Norm-Trittschallpegeln nach DIN 7396 bestimmt.
Die Werte der Tabelle sind unter maximal zulässiger Eigenlast – oder bis zur maximal im Prüfstand realisierbaren Last – des angeschlossenen Treppenbauteils gemäß DIN 7396 geprüft worden und stellen somit Werte auf der sicheren Seite dar. Die Kennwerte der Schöck Tronsole® Typen wurden alle in Kombination mit der Fugenplatte Schöck Tronsole® Typ L gemessen. Falls systemfremde Fugenmaterialien mit dem Trittschalldämmelement Schöck Tronsole® kombiniert werden sollten, werden sich im Allgemeinen, aufgrund der gegebenenfalls höheren Trittschallübertragung über das flankierende Fugenmaterial, geringere Trittschalldämmwerte ergeben. Die angegebenen Kennwerte sind in diesen Fällen nicht mehr sichergestellt. Die Ausbildung einer Luftfuge ist möglich, wenn sie ausreichend groß ist (größer 5 cm), sodass sich weder durch Schmutz noch durch Putz Schallbrücken bilden können.
Prüfstandswerte nach DIN 7396 der Schöck Tronsole®
Hinweis:
1) Typ B-V1/B-V2: von der Schöck Tronsole® Typ F abgeleitete Werte
 2) Typ T-V7/T-V8: extrapolierte Werte
Die messtechnische Prüfung der Trittschalldämmung von tragenden Wärmedämmelementen ist normativ nicht geregelt. In der EAD (European Assessment Document) ist ein Verfahren zur Prüfung das Trittschalldämmverhalten von tragenden Wärmedämmelementen beschrieben. Die EAD ist die Grundlage für die Europäische Technische Bewertung (European Technical Assessment - ETA). Sofern Trittschalldämmwerte in einer ETA für tragende Wärmedämmelemente aufgenommen werden sollen, müssen die Werte anhand des EAD-Prüfaufbaus ermittelt werden.
Die Prüfung der Trittschalldämmung von tragenden Wärmedämmelementen kann alternativ mit zwei unterschiedlichen Prüfverfahren erfolgen. Das eine Prüfverfahren basiert auf der Messung von Körperschall. Dies hat den Vorteil, dass keine akustisch getrennten Sende- und Empfangsräume benötigt werden. Der Prüfaufbau besteht aus zwei gegenüber angeordnet auskragenden Balkonplatten, welche die den zu prüfenden Wärmedämmelementen angeschlossen sind. Die mittlere Platte (Deckenplatte) ist elastisch auf Hilfsmauern gelagert. Es gibt auch die Möglichkeit, dass an der Deckenplatte nur eine Balkonplatte angeschlossen wird. Als Referenzaufbau wird ein zweiter Aufbau mit den gleichen Abmessungen benötigt, bei dem die Platten durchbetoniert werden (starrer Anschluss). Der Prüfaufbau muss nicht unbedingt symmetrisch sein.
Für tragende Wärmedämmelemente, die nur Querkräfte übertragen, sind die auskragenden Platten am Ende der Auskragung zu unterstützen und von der Stütze elastisch zu lagern.
Prüfaufbau nach EAD für tragende Wärmedämmelemente, Grundriss
Die Prüfung erfolgt nach DIN EN ISO 16283-2 „Akustik - Messung der Schalldämmung in Gebäuden und von Bauteilen am Bau - Teil 2: Trittschalldämmung" und DIN EN ISO 10848-1 „Akustik - Messung der Flankenübertragung von Luftschall, Trittschall und Schall von Gebäudetechnischen Anlagen zwischen benachbarten Räumen im Prüfstand und am Bau - Teil 1: Rahmendokument".
Der Schnellepegel ist entsprechend in den Norm-Trittschallpegel umzurechnen:
Ln,v = Norm-Trittschallpegel, ermittelt aus Schnellepegelmessung, in Dezibel
Lv = Schnellepegel auf dem Bauteil (ref. 5 x 10-8 m/s), in Dezibel
S = Deckenfläche mit S = 2,8, in Quadratmeter
Die Ermittlung des bewerteten Norm-Trittschallpegels Ln,v,w erfolgt nach DIN EN ISO 717-2. Zur Kennzeichnung der Schnellepegelmessung wird der zusätzliche Index v verwendet. Das andere Messverfahren basiert auf der Messung von Luftschall. Dazu muss der Sendebereich (Balkonplatte) hinsichtlich der Luftschallübertragung vom Empfangsraum entkoppelt sein.
Die bewertete Trittschallpegeldifferenz ∆Ln,v,w eines tragenden Wärmedämmelementes ergibt sich aus der Differenz des bewerteten Norm-Trittschallpegels Ln,v,w mit tragenden Wärmedämmelement und dem bewerteten Norm-Trittschallpegels Ln0,v,w der durchbetonierten Platte.
∆Ln,v,w = bewertete Trittschallpegeldifferenz eines tragenden Wärmedämmelementes, in Dezibel
Ln,v,w = bewerteter Norm-Trittschallpegel einer Decke bei Anregung einer Balkonplatte, die mit einem tragenden Wärmedämmelement getrennten ist, in Dezibel
Ln0,v,w = bewerteter Norm-Trittschallpegel einer Decke bei Anregung einer durchbetonierten Balkonplatte, in Dezibel
Die bewertete Trittschallpegeldifferenz ∆Ln,v,w kann für den Schallschutznachweis nach DIN 4109 verwendet werden.