Wij verwelkomen je graag op de BouwBeurs 2025 in Hal 8 op onze Schöck stand C048. Klik hier om je gratis te registreren.

X
Rotterdam, NL

Verstegen Spices & Sauces

Een baanbrekend renovatieproject
Het gebouw van Verstegen Spices & Sauces in Rotterdam is getransformeerd tot een voorbeeld van duurzaamheid en innovatie. Schöck Nederland speelde een belangrijke rol in dit project, dat laat zien hoe samenwerking en hoogwaardige bouwtechnieken een toekomstbestendige oplossing bieden.

Samenwerking met toonaangevende partijen
Het project werd gerealiseerd in samenwerking met:

  • Gemeente Rotterdam
  • Verstegen Spices & Sauces (opdrachtgever)
  • Zig Zag Solar (systeemleverancier)
  • Metadecor (gevelbouwer & engineering)

Het renovatieconcept
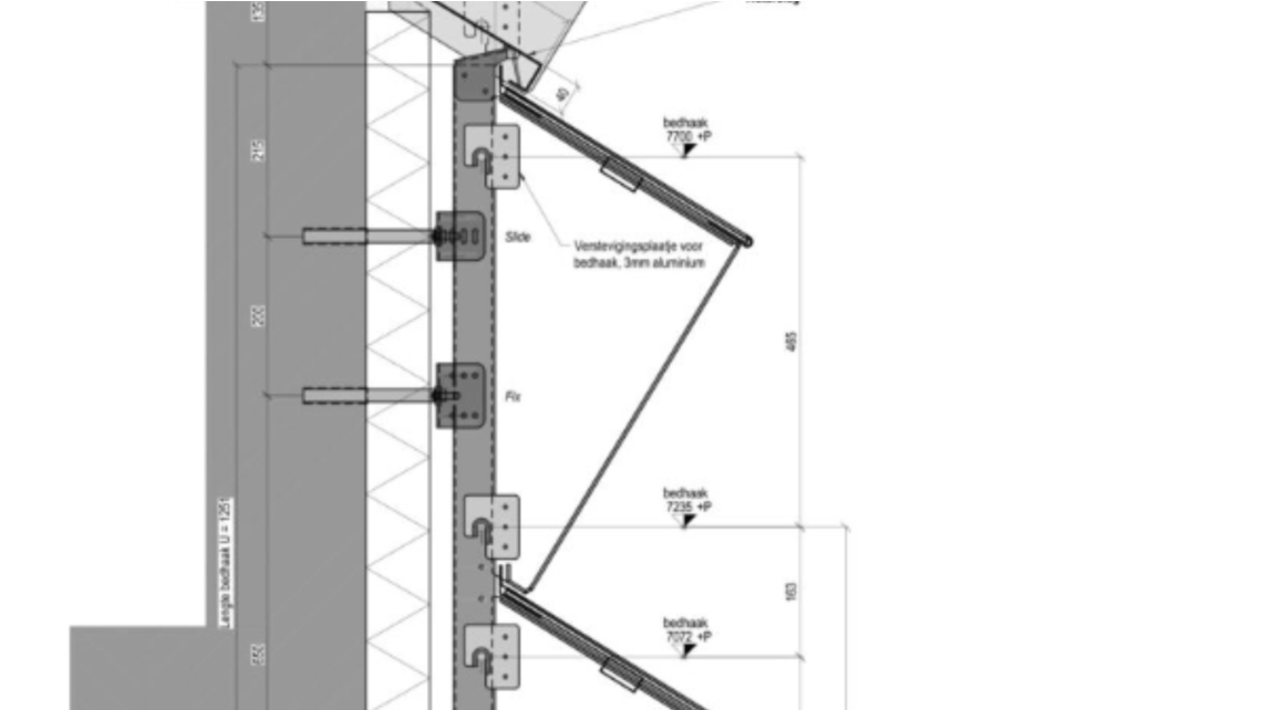
De gevel is volledig vernieuwd en geïsoleerd. Met 1.700 Schöck Isolink® ankers is het Zig Zag Solar-zonnegevelsysteem veilig verbonden met de bestaande gemetselde achterconstructie. Deze zonnegevel combineert esthetiek met energie-opwekking en draagt bij aan duurzaamheid.

Trekproeven voor zekerheid
Trekproeven hebben aangetoond dat Schöck Isolink® ankers een veilige bevestiging bieden, zelfs in gemetselde achterconstructies. Dit bood de opdrachtgever en partners vertrouwen in de constructieve prestaties.

De kracht van Schöck Isolink®
Schöck Isolink® minimaliseert warmteverlies en verbetert de energie-efficiëntie van gebouwen. De ankers zijn duurzaam en bieden hoge belastbaarheid.

Video