© Bauwerk
© Bauwerk
© Bauwerk
© Bauwerk
Grundriss der ersten Etage im Van B München.
© UNStudio
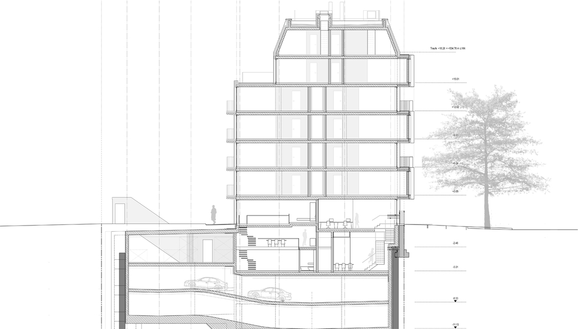
Schnitt Section C des Van B München.
© UNStudio
Die effiziente Durchstanzbewehrung Schöck Bole sichert die erforderliche Tragfähigkeit der Geschossdecken am Van B München und ermöglicht eine freie Grundrissgestaltung sowie die volle Nutzbarkeit der Geschosshöhen.
© Schöck Bauteile GmbH
Schöck Isokorb XT Typ K ist ein tragendes Wärmedämmelement für frei auskragende Balkone.
© Schöck Bauteile GmbH
Durch den Einsatz von Schöck Isokorb konnten am Van B in München auch möglichst filigrane Balkonplatten realisiert und auf eine Wärmedämmung der Balkonplatte verzichtet werden.
© Schöck Bauteile GmbH
Als tragendes Wärmedämmelement für auskragende Bauteile minimiert Schöck Isokorb Wärmebrücken und sorgt für einen energieeffizienten Anschluss der Balkonplatte an die Geschossdecke.
© Schöck Bauteile GmbH
Kupferfarbene Metallverkleidungen, zurückhaltendes Betongrau und eine stilvolle Geometrie bestimmen das elegante Erscheinungsbild von Van B, einem Wohnhaus der Premiumklasse in Münchens exklusiver Bestlage. Das siebengeschossige Gebäude, entworfen von Architekturvisionär Ben van Berkel, beherbergt 142 Wohneinheiten. Die aufsehenerregende, durch eine Vielzahl wabenförmig versetzter Erkervorsprünge strukturierte Fassade löst die Grenzen zwischen Innen- und Außenräumen auf. An der teils terrassenförmig abgestuften Rückseite erweitern langgestreckte Balkone den Wohnraum in Richtung eines begrünten Innenhofs. Dank des architektonischen Konzepts wirkt der kompakte Baukörper offen und leicht. Für den zuverlässigen Halt und die sichere Lastabtragung der filigranen Balkonplatten und Decken sind Schöck Isokorb und die Durchstanzbewehrung Schöck Bole im Einsatz.
Den ausführlichen Objektbericht zum Projekt finden Sie hier.
2020/2021–2023
Bauwerk
Ben van Berkel, UNStudio, Amsterdam
BKLS Architekten + Stadtplaner BDA, 80336 München
Ingenieurgesellschaft albrecht + brettfeld mbH, 82067 Schäftlarn / Ebenhausen
Schöck Isokorb©, Schöck Bole©