Baden-Baden

In Frankfurt hat die Zukunft schon begonnen

Die Architekten des Schweizer Atelier 5 realisierten im Frankfurter Stadtteil Riedberg mit dem Wohnprojekt BLINK YOUR EYES ein innovatives und zukunftsfähiges Wohnkonzept. Die an Bauhaus angelehnte Architektur verbindet klassische Moderne mit dem Wohnkomfort des digitalen Zeitalters. Dazu gehören auch das Wohlbefinden und die Wohngesundheit, denen der Bauherr BIEN-RIES AG bei diesem Projekt besondere Aufmerksamkeit schenkte. Einen hohen Beitrag zur Bauqualität und zur Erreichung der anspruchsvollen Energieziele dieses Projekts leisteten die Produkte der Schöck Bauteile GmbH.  Dazu gehören Lösungen für Wärme- und Trittschallschutz.

Das Stadtgebiet Riedberg erstreckt sich zwischen Kalbach im Nord-Osten, den Stadtteilen Heddernheim mit dem Mertonviertel im Süden und Niederursel im Westen. Seit 2001 entsteht im Nordwesten Frankfurts der neue Stadtteil Riedberg, ein Quartier des Wohnens und des Wissens. Vier große Parkanlagen verbinden die insgesamt sieben Stadtquartiere, die sich durch verschiedene Bebauungs- und Nutzungkonzepte unterscheiden. Der naturwissenschaftliche Campus der Goethe-Universität, verschiedene Life-Science-Firmen oder Institute der Max-Planck-Gesellschaft machen den Riedberg zum Innovationsstandort. Das zeigt sich auch in der Realisierung des Projekts BLINK YOUR EYES, einem zukunftsfähigen Wohnkonzept. Im Rahmen des städtebaulichen Entwicklungsprojekts erhielt die BIEN-RIES AG von der Stadt Frankfurt am Main den Zuschlag für den Bau. Voraussetzung dafür war ein vorangehender Architekturwettbewerb. Die Entwürfe zu dem innovativen Wohnkonzept BLINK YOUR EYES stammen von den Schweizer Architekten Atelier 5. Die Architektur der Gebäude ist von starken Bezügen zur Bauhaus Architektur geprägt.

Architektonisches Konzept

Die Idee, das Quartier auf eine Bastion zu heben und so für einen größeren Abstand zur Straße „Zur Kalbacher Höhe“ zu sorgen war möglich, weil das 7.330 Quadratmeter große Grundstück von Norden nach Süden abfällt. Durch ein Abdrehen der Gebäudekörper von der Straße gewinnt man ein schützendes Vorland, das mit üppiger Vegetation ein Entdeckungsort für die Bewohner wird. Im Inneren der Terrassenanlagen prägt eine verdichtete Hof-Bebauung das Siedlungsbild. Die fünf Gebäude mit jeweils drei Geschossen wurden um einen zentralen Innenhof gruppiert, unter dem die Tiefgarage Platz fand. Sie nimmt vollständig den ruhenden Verkehr auf. Zum Innenhof hin sind private Gärten angeordnet. Diese privaten Räume sind gegenüber dem halböffentlichen, gemeinsamen Innenhof durch Sichtbetonwände geschützt und bieten so Rückzugsmöglichkeiten. Die strenge, kubische Form der Grundgebäude wird durch die versetzt angeordneten Balkone und die erkerartigen Dachterrassen geschickt aufgebrochen. Große, bodentiefe Fenster im Wechsel mit andersformatigen Fensterflächen schaffen einen Kontrast zur schlichten, weißen Fassadengestaltung. Im Innenbereich setzt sich der Bezug zur Moderne weiter fort: Die Wohnungstechnik wird über ein Bus-System per Smartphone gesteuert. So lässt sich die Heizung oder die motorisch betriebenen Textilscreens komfortabel regeln. „Die Häuser, die wir heute bauen, bleiben über viele Generationen stehen. Darum versuchen wir, vorauszudenken und Flexibilität mit „einzubauen“. Was passiert zum Beispiel einmal mit einer Tiefgarage, wenn es neue Mobilitätskonzepte und keine Autos mehr gibt? Wie verändert sich der Alltag durch Technik – und damit die Anforderungen an die Wohnung? Das versuchen wir bei BLINK YOUR EYES schon heute zu berücksichtigen“, erläutert Wolfgang Ries, Gesellschafter und Vorstand BIEN-RIES AG.

Mehrwert versteckt im Beton

Die fünf Gebäude mit einer Wohnfläche von insgesamt 9.590 Quadratmetern wurden in Massivbauweise mit Kalksandstein-Mauersteinen und Wärmedämmverbundsystem errichtet. So konnte leicht der KfW 70 Standard erreicht werden. Die insgesamt 131 Eigentumswohnungen mit Wohnflächen von 35 Quadratmetern bis zu 155 Quadratmetern, sprechen den jungen Berufsanfänger genauso wie den Liebhaber eines Penthouses, einer Gartenwohnung mit Terrasse oder einer Wohnung mit weiträumigen Balkonen an. Großzügige, offene Wohn-Essbereiche und fünf verschiedene Designlinien zur Auswahl im Bad bieten weiteren Gestaltungsspielraum. Alle Wohnungen haben eine ungewöhnlich hochwertige Ausstattung, die sich auch, verborgen im Beton, fortführt. Sei es bei den Balkonanschlüssen, beim Anschluss des Gebäudesockels oder einem erhöhten Schallschutz zum Wohle der Bewohner.

Erhöhter Schallschutz

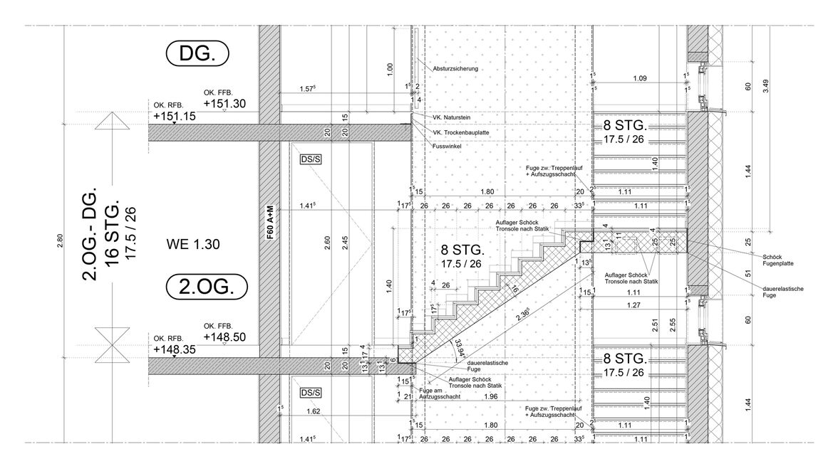
Schutz vor Lärm ist von großer Bedeutung für Komfort und Gesundheit. Das gilt besonders in den eigenen Räumen, in denen Menschen entspannen und ausruhen möchten. Die Norm DIN 4109 „Schallschutz im Hochbau“ legt die öffentlich-rechtlichen Mindestanforderungen an die Luft- und Trittschalldämmung von Bauteilen und haustechnischen Anlagen fest. Diese sind im allgemeinen Wohnungsbau und auch für den Bauherrn nicht mehr ausreichend. Denn auch bei Einhaltung der Mindestanforderungen der DIN 4109 sind Belästigungen und Geräusche aus benachbarten Wohnungen oder von haustechnischen Anlagen nicht auszuschließen. Um die Trittschallübertragung aus den Treppenhäusern in die Wohnungen zu reduzieren, bedarf es einer akustischen Entkopplung von Treppenläufen und Podesten zu den Wänden und Decken. Das ist nicht immer einfach, denn wie bei diesem Projekt müssen gerade diese Bauteile statisch miteinander verbunden sein. Um diesen Anforderungen gerecht zu werden, entwickelte das Unternehmen Schöck Bauteile GmbH die Schöck Tronsole: Trittschalldämmelemente für alle Anschlüsse von Stahlbetontreppen. Die wesentliche Komponente der Schöck Tronsole ist das Elastomerlager Elodur. Es ermöglicht eine sehr gute Schalldämmung bei geringer Einfederung. Die Planer nutzten Tronsole Typ F-V1, Typ Z, Typ B-V1 und Typ B-V2 für die Entkopplung der dreiläufigen Treppen, die um die jeweiligen Aufzugskerne herumlaufen. Tronsole Typ F sorgt für die akustische Entkopplung zwischen Fertigteiltreppenlauf und Podest. Tronsole Typ Z ist ein tragendes Trittschalldämmelement für den Einsatz zwischen Podest und Treppenhauswand. Mit der Schöck Tronsole Typ B wurde der Fußpunkt von den Fertigteil-Treppenläufen auf die Bodenplatte trittschallgedämmt aufgelagert.

Balkone thermisch getrennt

Zur Erreichung der anspruchsvollen Energieziele müssen, nach Stand der Technik, auch die frei auskragenden Balkone aus Betonfertigteilen thermisch von der Gebäudehülle getrennt werden. Wenn die Balkonplatte ohne thermische Trennung zum Gebäude hin eingebaut wird, entsteht am Übergang eine Wärmebrücke, die zu Bauschäden führen kann oder das Erreichen des geforderten Energiestandards verhindert. Um dies zu vermeiden, wurden sämtliche Balkone mit Schöck Isokorb XT, einem tragenden Wärmedämmelement für auskragende Bauteile, thermisch getrennt und statisch angeschlossen. Martin Engel, Geschäftsführer der Hochbau Engel GmbH erklärt: „Es gab insgesamt 214 Balkone, davon 130 in unterschiedlichen Größen. Die größeren Balkonfertigteile gingen von acht bis fünf Meter über Eck und mussten im Fertigteilwerk geteilt werden, da der Transport in dieser Größenordnung zu schwierig gewesen wäre. Die geteilten Elemente wurden mit dem Schöck Dorn Typ SLD statisch verbunden.“ Schöck Dorn überträgt die hohen Querkräfte zwischen den Bauteilen innerhalb der Bauteilfuge und ermöglich gleichzeitig eine horizontale Verschieblichkeit der Bauteile zueinander.

Für die Zukunft gerüstet

Die Hanauer BIEN-RIES AG, einer der größten Bauträger im privaten Wohnungsbau im Rhein-Main-Gebiet, startete mit BLINK YOUR EYES eines der innovativsten Wohnkonzepte der Mainmetropole. Die Frage, wie das Wohnen in Zukunft aussehen könnte, ist mit diesem Projekt beantwortet. Hohe Qualität der Materialien und der Wohnkomfort des digitalen Zeitalters tragen zum Wohlbefinden und zur Wohngesundheit der Bewohner bei. Der Bauträger BIEN-RIES entschied sich, die Produktlösungen der Schöck Bauteile GmbH einzusetzen. Die Produkte zur Minimierung von Wärmebrücken an Balkonen und von Trittschall in Treppenhäusern leisten einen großen Beitrag zur Bauqualität und zu den anspruchsvollen Energiezielen dieses Projekts. Bei allen Lösungen konnte sich der Bauherr auf hohe Produktqualität, Liefertreue und umfassende Serviceleistungen verlassen. Martin Engel als Spezialist im Hochbau mit langjähriger Erfahrung ergänzt: „Wir arbeiten schon lange mit den Produktlösungen von Schöck und sind mit der Verarbeitung und dem Ergebnis sehr zufrieden.“

Downloads
Bilder in Webqualität
zip, 801,19 KB
Bilder in Printqualität
zip, 8,68 MB
Objektbericht unformatiert
txt, 11,12 KB
Objektbericht PDF
pdf, 397,71 KB