Ausdrucksstarke Architektur für den urbanen Lifestyle

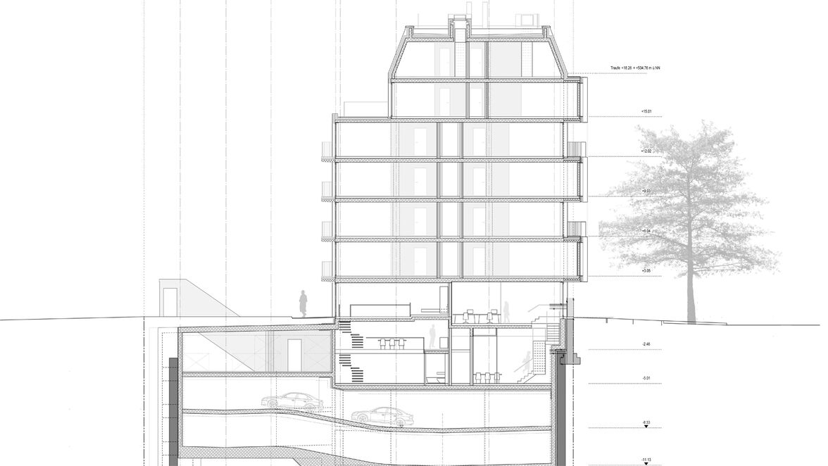
Baden-Baden, im April 23. - Kupferfarbene Metallverkleidungen, zurückhaltendes Betongrau und eine stilvolle Geometrie bestimmen das elegante Erscheinungsbild von Van B, einem Wohnhaus der Premiumklasse in Münchens exklusiver Bestlage. Das siebengeschossige Gebäude, entworfen von Architekturvisionär Ben van Berkel, beherbergt 142 Wohneinheiten. Die aufsehenerregende, durch eine Vielzahl wabenförmig versetzter Erkervorsprünge strukturierte Fassade löst die Grenzen zwischen Innen- und Außenräumen auf. An der teils terrassenförmig abgestuften Rückseite erweitern langgestreckte Balkone den Wohnraum in Richtung eines begrünten Innenhofs. Dank des architektonischen Konzepts wirkt der kompakte Baukörper offen und leicht. Für den zuverlässigen Halt und die sichere Lastabtragung der filigranen Balkonplatten und Decken sind Schöck Isokorb und die Durchstanzbewehrung Schöck Bole im Einsatz.

Mit dem an der Infanteriestraße 14 in Schwabing-West gelegenen Neubau liefert der Münchner Projektentwickler Bauwerk eine mögliche Antwort auf die Frage, wie angesichts zunehmender Flächenknappheit Wohnen in der Großstadt in Zukunft aussehen könnte. Der Name Van B ist dabei Programm. Das Konzeptdesign stammt von Ben van Berkel, einem visionären Vordenker und renommierten Architekten, dessen Amsterdamer UNStudio weltweit tätig ist. Mit seinem Ansatz zielt er auf Qualität statt Quantität und setzt auf Flexibilität anstelle von Quadratmetern: „Das Besondere und Einzigartige an Van B ist, dass es eine völlig neue Form des intelligenten Wohnens bietet.“

 

Wegweisendes Gesamtkonzept für urbanes Wohnen

Der Entwurf bringt die Notwendigkeit der Reduktion aufs Wesentliche mit den Design-, Qualitäts- und Lifestyle-Ansprüchen moderner Großstädter in Einklang. Dieser spezifischen Zielgruppe bietet Van B neben einer ausdrucksstarken Architektur ein nie dagewesenes Wohnerlebnis. Das Gebäude bietet 1-Zimmer-Apartments ab 33 Quadratmeter sowie Flats mit bis zu drei Zimmern und Flächen bis zu 168 Quadratmetern. Dank unterschiedlicher Raummodule, sogenannter Plug-ins, die sich ganz leicht an Schienensystemen verschieben oder wegklappen lassen, erhöhen sich die Nutzungsmöglichkeiten um ein Vielfaches. Herkömmliche Raumstrukturen lösen sich auf, verfügbare Flächen werden multifunktional bespielt und können spontan und situationsbezogen geändert werden.

 

Individuell gestalteter Lebensraum

Selbst im kleinsten Apartment lassen sich auf diese Weise beispielsweise ein Esszimmer mit einem Schlafzimmer plus einem Home-Office kombinieren. Was nicht gebraucht wird, rückt zur Seite und bietet der jeweils anderen Nutzung oder einem großen Wohnbereich Platz. Insgesamt stehen neun hochwertig ausgestattete Module zur Auswahl. Sie decken auch Bereiche wie Fitness oder Heimkino ab und können entsprechend dem persönlichen Lebensstil zusammengestellt werden. All das spielt sich rund um Küche und Bad ab – die einzigen Elemente, die fest definiert sind. Aufgrund der maximal flexiblen und individuellen Raumnutzung fühlen sich so 40 Quadratmeter wie 60 an. Den Eindruck verstärken die mit bodentiefen Fensterelementen versehenen Erkervorsprünge und Balkone. Sie schaffen einen nahezu nahtlosen Übergang vom Innen- zum Außenraum, wodurch zusätzliche Weite entsteht.

 

Mehr Gestaltungsfreiheit mit Schöck Isokorb

Richtung Innenhof zeigt sich der Baukörper zweigeteilt mit einer terrassenförmigen Abstufung auf der einen und einer plan vertikalen Fassade auf der anderen Seite. Hier schließen sich 44 vorgehängte Balkone an die Wohnbereiche an. Optisch fallen die filigran ausgeführten Balkonplatten kaum auf, so dass die Fassadengestaltung in sich geschlossen wirkt – ein Gestaltungsanspruch, der sich mit Schöck Isokorb XT Typ K realisieren ließ. Als tragendes Wärmedämmelement für auskragende Bauteile minimiert er Wärmebrücken und sorgt für einen energieeffizienten Anschluss der Balkonplatte an die Geschossdecke.

Zirka 200 laufende Meter Schöck Isokorb wurden bei diesem Projekt verbaut.

 

Individuelle und architektonisch anspruchsvolle Balkonlösungen

Stefan Seifert von BKLS Architekten + Stadtplaner BDA, den ausführenden Architekten, bestätigt: „Wir haben Schöck Isokorb eingesetzt, um eine möglichst filigrane Balkonplatte realisieren zu können. Dadurch konnten wir auf eine Wärmedämmung der Balkonplatte verzichten.“ Weitere Anwendung fand Schöck Isokorb an der straßenseitig gelegenen Fassade. Für die kleinen Balkone zwischen den Erkervorsprüngen wurde das Bauteil individuell angepasst.

 

Flachdecken sicher bewehren mit Schöck Bole

Auch das Innere des Wohngebäudes profitiert atmosphärisch von der filigranen und offenen Gestaltung.  Um die erforderliche Tragfähigkeit der Geschossdecken sicherzustellen, wurde Schöck Bole eingesetzt. Die effiziente Durchstanzbewehrung ermöglicht auch bei dünn ausgeführten Decken eine freie Grundrissgestaltung sowie die volle Nutzbarkeit der Geschosshöhen.

Zudem erleichtert Schöck Bole die Berücksichtigung der vielen Öffnungen in Durchstanzbereichen. „Angesichts der 142 Wohneinheiten unterschiedlichster Größen im Van B waren sehr viele Durchbrüche nötig“, erläutert Tragwerksplaner Dogan Göktas vom Büro Albrecht und Brettfeld die spezielle statische Herausforderung, die mit Schöck Bole bewältigt werden konnte.  

 

Ein Höchstmaß an Lebensqualität

Van B will wegweisend sein für die zukünftige Art zu leben und bietet den Bewohnern auch außerhalb der eigenen vier Wände ein attraktives Umfeld. So laden Gemeinschaftsflächen wie ein Co-Living Space, ein Rooftop Garden oder der Innenhofgarten zum Networken, zu sozialen Kontakten und spontanen Begegnungen oder zum Entspannen ein. Überdies gibt es viele nachhaltige Mobilitätsangebote wie beispielsweise eine Fahrradreparaturstation, E-Mobility sowie Car- und Bike-Sharing-Dienste.

Ben van Berkel gibt mit seinem Konzeptdesign den Ideen von Sharing Economy, Gemeinschaftsbildung und integrativen Wohnformen architektonischen Ausdruck: „Die Pandemie hat gezeigt, wie wichtig soziale Kontakte für unser Wohlbefinden sind. Aber gerade bei Nachbarn sind solche Begegnungen meist spontan und müssen daher erleichtert werden. Architektur kann dafür einen Rahmen schaffen", erklärt er.

Im Van B werden die Idee des persönlichen, kompakten und dabei flexiblen Wohnraums und die des Miteinanderlebens erstmals konsequent zusammengedacht sowie durch eine ebenfalls beispiellose Architektur gekrönt. Die Kombination aus einem Höchstmaß an Wohnqualität, Gemeinschaft und Individualität macht es zum „best place to be“ für Kosmopoliten mit besonderen Ansprüchen.

 

Bautafel

Bauzeit: 2020/2021–2023
Bauherr: Bauwerk
Entwurfsarchitektur: Ben van Berkel, UNStudio, Amsterdam
Ausführender Architekt: BKLS Architekten + Stadtplaner BDA, 80336 München
Tragwerksplanung: Ingenieurgesellschaft albrecht + brettfeld mbH, 82067 Schäftlarn / Ebenhausen
Produkte: Schöck Isokorb, Schöck Bole

 

Downloads
Bilder in Printqualität
zip, 18,95 MB
Bilder in Webqualität
zip, 1,63 MB
Pressemitteilung PDF
pdf, 2,95 MB
Pressemitteilung unformatiert
txt, 10,20 KB