Isokorb® Structural Thermal Breaks.
Insulate concrete-to-concrete and concrete-to-steel balcony connections.

Reduce heat loss by up to 90% while preventing mold growth where balconies penetrate the insulated building envelope with Isokorb® balcony thermal breaks.

Uninsulated balconies penetrating insulated building envelopes act like cooling fins, creating a thermal bridge between the cold exterior balcony and the warm interior structure that supports it, exposing the developer to potential short- and long-term problems.

read more
BIL_HIGHLIGHT_BalconyHome_rt_16z9_FHD.jpg

Structural thermal breaks at cantilever balcony connections

Problems caused by uninsulated balconies

    • Cost and environmental impact of wasted energy
    • Condensation in interior cavities resulting in mold growth, respiratory problems and associated liability
    • Discomfort due to cold interior surfaces
    • Noncompliance with new energy code requirements

Conventional balconies waste energy, chill floors, cause mold growth 

Because of their load-bearing requirement, conventional balconies are designed as extensions of the concrete floor slab within the heated building envelope. As such, they create a thermal bridge in the otherwise continuous insulation of the building envelope, rapidly conducting heat away from the warm interior, through the insulated envelope and into the exterior environment.

For decades, wasted heat and cold interior floors were accepted as unavoidable outcomes in North American buildings constructed with balconies.

Because these buildings also leaked air profusely, interior humidity levels equalized with low exterior humidity levels (typically 18 to 25%) during winter months. Forced hot air typically vented at or near the cold balcony penetration further ensured that interior humidity remained too low to reach dew point, form condensation or support mold growth.

BIL_US_balkon-058-Schimmel_16z9_FHD.jpg

Condensation forming on the underside of an uninsulated balcony penetration can lead to mold growth, respiratory problems and litigation

Airtight vapor barriers solved one problem, caused another

Modern buildings wrapped in airtight vapor barriers require less heat and retain more moisture, producing interior humidity levels of 35% to 50% (typical) during winter. While this humidity increase benefits energy efficiency and human comfort, it also allows the interior air to reach dew point, form condensation and support mold growth where cold balconies penetrate the interior side of the building envelope.

Mold can be growing on the inside face of sheetrock, studs and insulation — and occupants can be  breathing it in — years before it becomes visible on interior ceilings and walls, exposing the developer to significant remediation and liability risk.

How Schöck Isokorb® Structural Thermal Breaks support balcony loads, cut heat loss and prevent mold

A Schöck Isokorb® Structural Thermal Break is a fabricated assembly that is cast into the concrete floor slab at the location of the building insulation layer. The balcony thermal break insulates the interior floor slab from the exterior balcony while transferring the loads imposed on the exposed slab edge or cantilevered steel structure back to the interior floor slab.

Insulating a balcony with Schöck Isokorb® offers multiple benefits:

    • Prevent condensation and mold
    • Reduce heat loss by up to 90%
    • Improve the effective R-value of your building envelope by up to 50%
    • Increase warmth of interior floors by up to 34°F/19°C
    • Most effective way to meet the code requirements for continuous insulation
See Schöck’s full line of balcony products
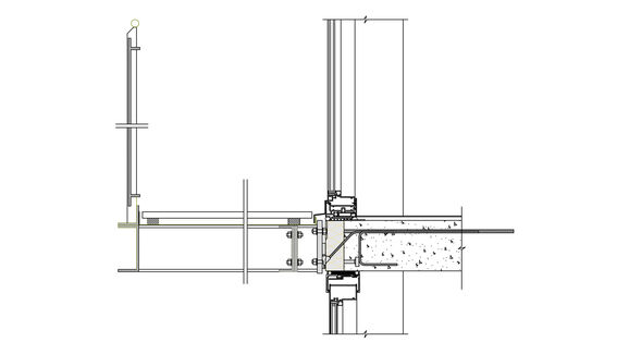
Concrete-to-Steel Balcony Detail Images

Structural thermal breaks for steel balconies on concrete buildings are equipped with rebar for casting into concrete floor slabs or other concrete structural elements on the interior of the building envelope, and high-tensile threaded rod for fastening to cantilevered steel balcony structures on the exterior of the building envelope.

Balcony Application Downloads
Marketing and Sales Literature
Schöck Isokorb® Product Guide
pdf, 1,17 MB
(09/18/2019)
Marketing and Sales Literature
Isokorb® Balconies Summary Sheet (USA)
pdf, 1,40 MB
(03/19/2021)
Marketing and Sales Literature
Isokorb® Concrete-to-Steel Connections summary sheet (Canada)
pdf, 1,74 MB
(07/02/2020)
Technical Manuals
Guide for Analyzing Thermal Bridges
pdf, 258,83 KB
Marketing and Sales Literature
Isokorb® PT Solution brochure
pdf, 2,59 MB
How can we help you?
Request pricing/proposal for your project

Submit your project details here to get a custom solution and pricing details.

Contact Schöck for answers to your questions

Find your local Schöck professional, submit requests via our online form, or simply call us.

Join the Schöck Email List.
For essential news on thermal break solutions.