Zagreb, HR

Muzička akademija

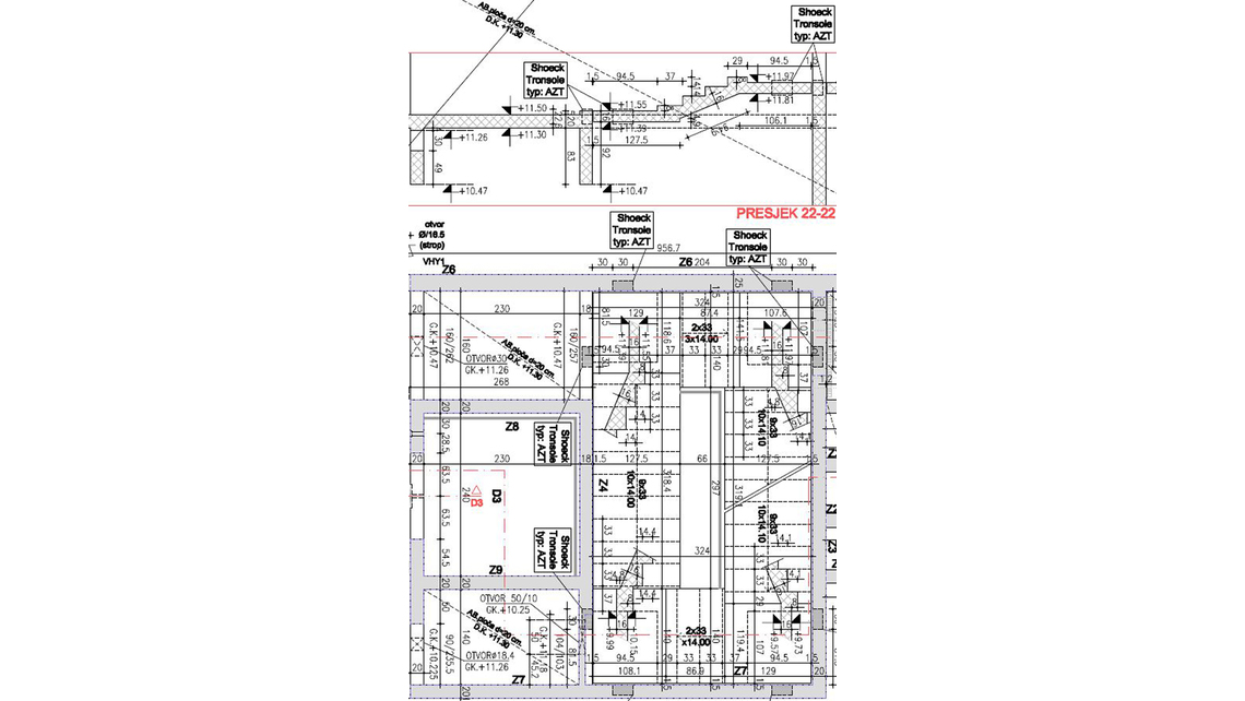
Muzička akademija Sveučilišta u Zagrebu najveća je i najstarija visokoškolska glazbena ustanova u Republici Hrvatskoj. Nakon 90 godina, muzička akademija Sveučilišta u Zagrebu biti  će smještena u svoj prostor. U sklopu akademije godišnje se organizira oko 300 koncerata, produkcija i javnih priredbi koje se osim u prostorima Akademije, održavaju u Koncertnoj dvorani Vatroslav Lisinski te ostalim zagrebačkim koncertnim dvoranama. U novoj zgradi bit će smješteni svi odsjeci Akademije, Dekanat, knjižnica, vježbaonice, kabineti, te dvije koncertne dvorane. Uzmemo li u obzir namjenu građevine i akustičnu komponentu koju je u potrpunosti tebalo ispoštovati, Schöck Tronsole® sustav za zvučnu izolaciju bio je logičan izbor. Ugrađen je kompletan sustav zvučne izolacije koji uključuje Tronsole® tip AZT, Tronsole tip T8, Tronsole® tip B i dilatacijeske ploče PL, čime je spriječeno širenje udarne buke sa stubišta u okolne prostorije u objektu.

Završetak projekta

2013

Površina

12.000 četvornih metara, 2 podzemne etaže, prizemlje i 7 nadzemnih katova

Arhitekt

Mistrija d.o.o. Milan Šosterić

Izvođač

Nexe gradnja d.o.o.

Investitor

Grad Zagreb

Statičar

Škoro d.o.o. Branislav Škoro

Nadzor

Interkonzalting d.o.o.